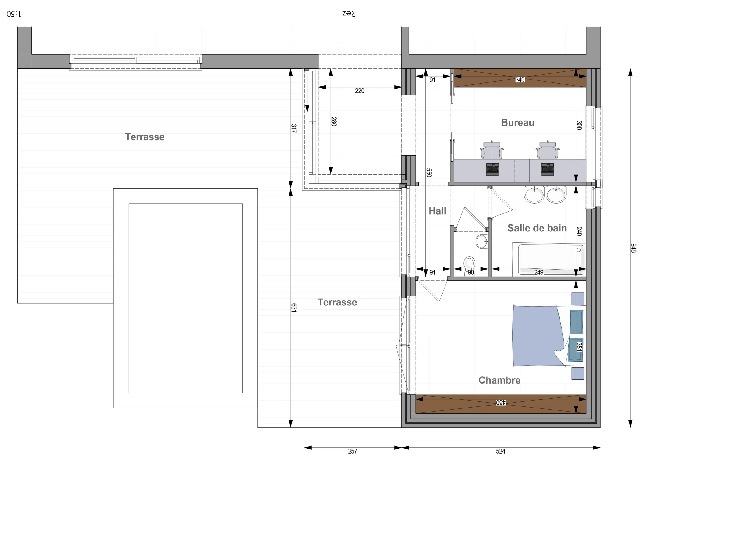
Plan de l'extension du modèle CR 26

Plan model CR 26

Prix de l'extension du modèle CR 26

Clé sur porte

Gros oeuvre fermé

Surface totale

151 616 € htva

88 716 €

59,5 m²

Hauteur sous corniche : 3m

Angle de toiture : 0°

Nos partenaires

⎯⎯⎯ Nos récompenses ⎯⎯⎯

Demandez gratuitement votre catalogue de rénovation​