modele extension maison compère

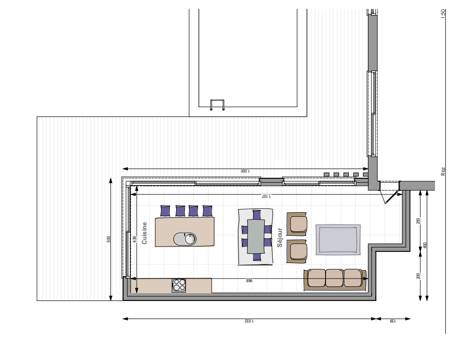
Plan de l'extension du modèle CR 30

Prix de l'extension du modèle CR 30

Clé sur porte

Gros oeuvre fermé

Surface totale

153 995 € htva

112 574

54, 275 m²

Hauteur sous corniche : 3m

Angle de toiture : 0°

Nos partenaires

⎯⎯⎯ Nos récompenses ⎯⎯⎯

Demandez gratuitement votre catalogue de rénovation​